반응형

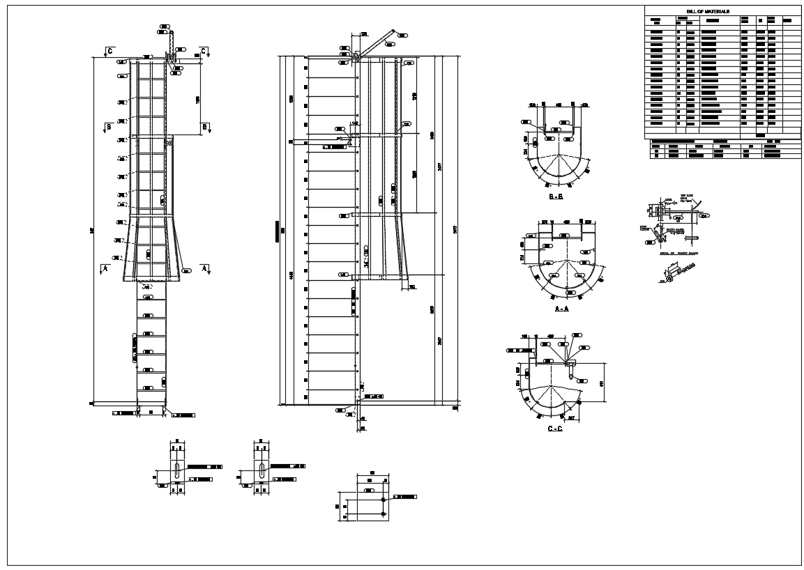
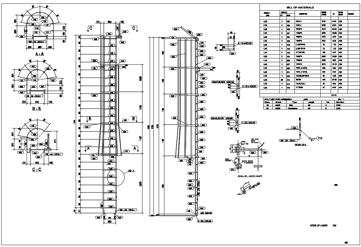
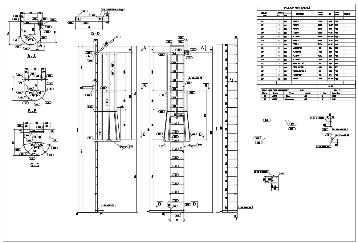
Ladder 는 우리말로 사다리를 말하며 낮은 곳에서 높은 곳으로 이동하기 위해 설치하는 구조물을 뜻 합니다. 플랜트 설비에서도 계단식 구조를 사용하지 못하는 구간에 이동 통로로 Ladder 를 사용합니다. 공사 마다 규격이 다를 수 있지만 일반적으로 3 m 이상 위로 올라가야 할 경우 입구에 700 mm 의 Cage 를 2.1m 높이에 설치해야 합니다. 이를 통해 사람이 상부로 안전하게 이동할 수 있습니다.



첨부자료 (출처 : 미상)
첨부 자료는 상업적 결과를 보증하는 것이 아니며 사용자 재량에따라 사용할 것을 권고합니다.
반응형
'CAD & Block 자료' 카테고리의 다른 글
| 오토캐드 명령어 140 가지 (0) | 2023.12.14 |
|---|---|
| 배관 ISOMETRIC 도면 셈플 (0) | 2023.12.09 |
| Handrail 설계 자료 (CAD DWG) (1) | 2023.11.26 |
| 교통신호 팻말 캐드블럭 모음 (1) | 2023.11.06 |
| 3D CAD에서 작업한 도면(.idw)을 2D(.dwg) 일품다도로 신속히 전송하기 (0) | 2023.10.26 |
댓글